+359 896 162 777 office@novvek.bg

гр. Варна, ул. София 3 Работно време: 9:00 - 18:00

Продава 2-стаен КОД: 237

Двустаен апартамент в най – хубавата част на кв. Владислав Варненчик

€ 86,473 / € 1,310.20 на м2 /

2-стаен Тип

Етаж 4 от 15 етажа

0 Спални

58 м2 Чиста площ

66 м2 Обща площ

€ 1,310.20 Цена м2

€ 86,473 Цена

  • Код: 237
  • Статус: Свободен
  • Град: Варна
  • Строителство: Тухла
  • Година на строителство: 2028
  • Площ: 66 м2

НОВО КАЧЕСТВЕНО СТРОИТЕЛСТВО! СГРАДА РАЗПОЛОЖЕНА В НАЙ- ХУБАВА ЧАСТ НА КВАРТАЛ ВЛАДИСЛАВ ВАРНЕНЧИК! ВЪЗМОЖНОСТ ЗА ИЗБОР НА РАЗЛИЧНИ ОБЕКТИ!

Агенция за недвижими имоти НОВ ВЕК ви представя новият ни ексклузивен проект, сграда VARNENCHIK 4 ! Свържи се с нас и резервирай своят нов имот, само срещу 4000 евро депозит! Възможност за избор между различни етажи и изложения, открити паркоместа, подземен паркинг и самостоятелни гаражи! Сградата разполага с жилища с по една и две спални, както и възможност за обединение на апартаменти! Гъвкави схеми на плащане, според възможностите и профила на клиента. Всеки закупил имот в сградата, получава безплатна консултация с интериорен дизайнер, както и отстъпка при поръчка на проект за завършване и обзавеждане!

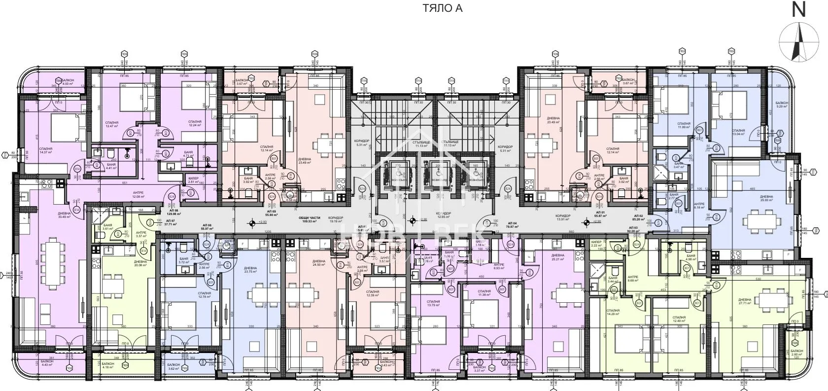
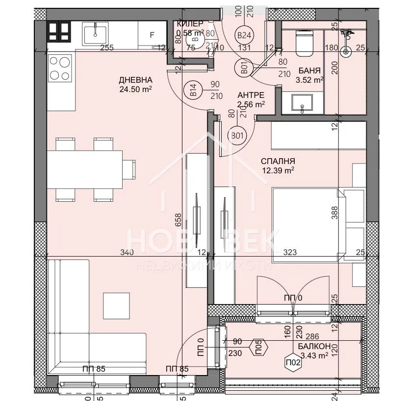
Имотът е с жилищна площ от 65.60кв.м и се състои от: дневна с кухня и трапезария,спалня, балкон, баня с тоалетна. Разположен е на 4ми от 15 етажа. Към всеки имот ще бъдат включени съответните идеални части от общите части на сградата, както и от земята върху която ще бъде изграден обекта.

Сградата ще бъде разположена под бул. 3-ти март, близо до магазини KAUFLAND и JUMBO. Новите собственици ще имат на разположение всичко необходимо на пешеходно разстояние. Магазини, аптеки, парк с алеи за разходка и обособени места за домашни любимци, спирка на градски транспорт с редовни линии до всички части на града, училища и детски градини, фитнес зала, банки, пазар, офиси на спедиторски компании и много други!

ПРЕДИМСТВА НА СГРАДАТА:

Функционални разпределения за максимален комфорт и уют на обитаване;

Светли и просторни стаи с правилни форми, всяко жилище разполага с 1 или 2 сервизни помещения;

Панорамна гледка към Варненското езеро и града;

Качествено изпълнение до степен на завършеност БДС, подготвено за довършителни дейности;

Възможност за обединение на апартаменти при нужда от по- голяма площ;

БОНУСИ ПРИ ПОКУПКА НА ИМОТ В СГРАДАТА:

Безплатна консултация с интериорен дизайнер;

Отстъпка при поръчка на проект за интериорен дизайн;

Отстъпка от материалите, необходими за довършителни работи;

Отстъпка при поръчка на обзавеждане и оборудване;

Опция за завършване до ключ;

Обади се сега и цитирай този код: 237

За повече информация и оглед свържете се с мен:

Валентин Динев +359882853331

Двустаен апартамент в най – хубавата част на кв. Владислав Варненчик
Продава

Двустаен апартамент в най – хубавата част на кв. Владислав Варненчик

2-стаен КОД: 237

€ 86,473 / € 1,310.20 на м2 /

Варна

Площ:
66 м2

Тип:
2-стаен

Етаж:
4

* Натискайки бутона “Изпращане” Вие се съгласявате с нашите Общи условия и Политиката за защита на личните данни.

Още имоти

Отдава под наем

4-стаен

КОД: 527

€ 2,200 / € 11.22 на м2 /

Варна Идеален център

Площ:
196 м2

Тип:
4-стаен

Етаж:
3 от 5

Отдава под наем

3-стаен

КОД: 526

€ 650 / € 9.29 на м2 /

Варна Гръцка махала

Площ:
70 м2

Тип:
3-стаен

Отдава под наем

2-стаен

КОД: 523

€ 665 / € 8.52 на м2 /

Варна Гръцка махала

Площ:
78 м2

Тип:
2-стаен

Отдава под наем

Склад

КОД: 522

€ 828 / € 6.14 на м2 /

Варна Западна пром. зона

Площ:
135 м2

Тип:
Склад

Продава
КОД: 521

€ 435,000 / € 1,204.99 на м2 /

Варна, област с.Казашко

Площ:
361 м2

Отдава под наем

2-стаен

КОД: 512

€ 500 / € 6.17 на м2 /

Варна Окръжна болница

Площ:
81 м2

Тип:
2-стаен

Отдава под наем

3-стаен

КОД: 511

€ 650 / € 9.29 на м2 /

Варна Възраждане

Площ:
70 м2

Тип:
3-стаен

Отдава под наем

1-стаен

КОД: 509

€ 409 / € 13.63 на м2 /

Варна Център

Площ:
30 м2

Тип:
1-стаен

Отдава под наем

2-стаен

КОД: 508

€ 601 / € 9.24 на м2 /

Варна Левски

Площ:
65 м2

Тип:
2-стаен

Етаж:
2 от 6

Отдава под наем

3-стаен

КОД: 500

€ 550 / € 9.17 на м2 /

Варна Окръжна болница

Площ:
60 м2

Тип:
3-стаен

Отдава под наем

3-стаен

КОД: 499

€ 562 / € 8.65 на м2 /

Варна Център

Площ:
65 м2

Тип:
3-стаен

Научи за новите имоти преди да бъдат публикувани!

* Натискайки бутона “Абонирай ме” Вие се съгласявате с нашите Общи условия и Политиката за защита на личните данни, като ще получавате имейлки от Нов Дом на посочения имейл адрес