+359 896 162 777 office@novvek.bg

гр. Варна, ул. София 3 Работно време: 9:00 - 18:00

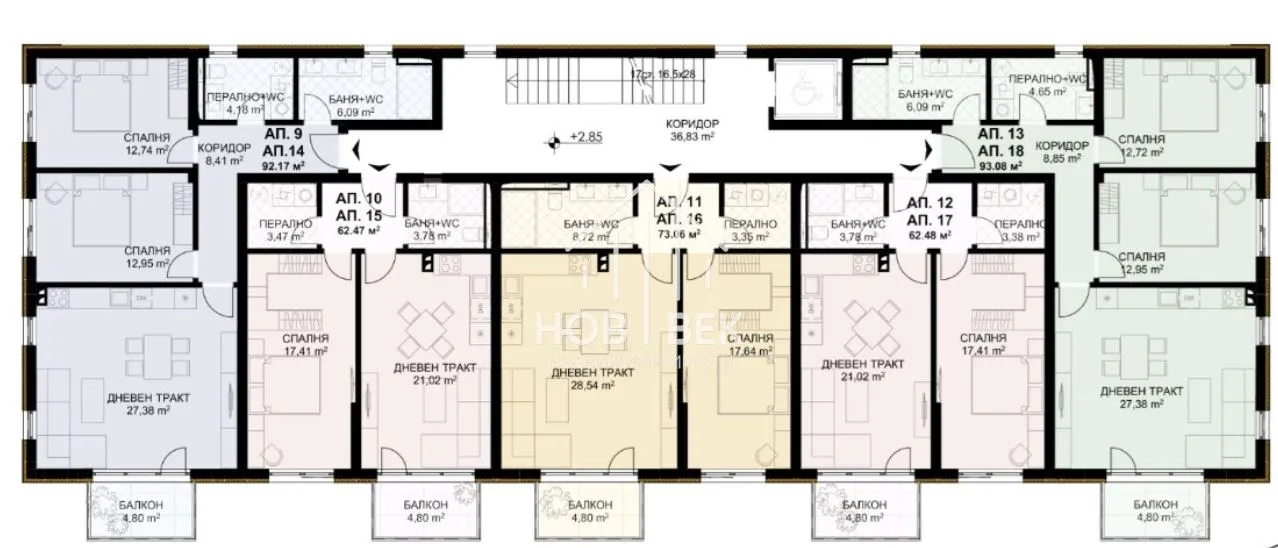
Продава 2-стаен КОД: 82

НОВО СТРОИТЕЛСТВО!!!БУТИКОВА СГРАДА!!!КВ.БРИЗ

€ 156,000 / € 2,006.43 на м2 /

2-стаен Тип

Етаж 0 от 0 етажа

0 Спални

62.47 м2 Чиста площ

77.75 м2 Обща площ

€ 2,006.43 Цена м2

€ 156,000 Цена

  • Код: 82
  • Статус: Свободен
  • Град: Варна
  • Район: Бриз
  • Строителство: Тухла
  • Година на строителство: 2027
  • Площ: 77.75 м2

НОВ ВЕК Недвижими имоти предлага на вашето внимание един нов проект в кв.Бриз гр.Варна.

Двустаен апартамент намиращ се в сграда с комбинация от модерна архитектура и луксозно изпълнение, в непосредствен допир с природата. Именно това съчетание гарантира на Вас и Вашите деца, спокойствие и удобство, от което всички имаме нужда в забързаното ежедневие!

Разпределението е както следва : коридор, баня с тоалетна, перално, хол с кухня и трапезария, спалня, тераса. Към апартамента има предвидено за закупуване паркомясто с топла връзка.

В сградата има 21 апартамента с площ от 72 до 156 м², като за всеки от тях има предвидено мазе.

Сградата е на пешеходно разстояние от стадион Юрий Гагарин и на 500 метра от автобусна спирка на бул. Васил Левски . В близост има голям хипермаркет, плувен басейн, фитнес зала, медицински център, детски градини и училища.

Правилните форми, функционалните разпределения и внимание към всеки детайл са в основата на проекта.

– Блиндирани входни врати

– 8-местен електрически асансьор

– Входната и гаражната врати на Hörmann

– Дограмата е в сив цвят с профили GEALAN – шест-камерна, енерджи стъкла

– До всяка стая на апартаментите ще бъдат прекарани трасета за климатици

– Ограда от ковано желязо, по цялата периферия на имота

– Тераси със стъклени парапети

– Периметрово видеонаблюдене

– Видеонаблюдение на подземния паркинг

– Апартаментите имат вградена система за охрана

На разположение на бъдещите собственици, в двора ще бъдат изградени кът за отдих и детска площадка.

Гъвкавите схеми на разплащане и неподлежащата на промяна цена след подписване на предварителен договор, са допълнителни предимства. Съдействаме за банков кредит, интериорен дизайн и довършителни работи.

Не се колебайте да се свържете с мен на: 359882853331 Валентин Динев

НОВО СТРОИТЕЛСТВО!!!БУТИКОВА СГРАДА!!!КВ.БРИЗ
Продава

НОВО СТРОИТЕЛСТВО!!!БУТИКОВА СГРАДА!!!КВ.БРИЗ

2-стаен КОД: 82

€ 156,000 / € 2,006.43 на м2 /

Варна Бриз

Площ:
77.75 м2

Тип:
2-стаен

Етаж:
0

* Натискайки бутона “Изпращане” Вие се съгласявате с нашите Общи условия и Политиката за защита на личните данни.

Още имоти

Отдава под наем

4-стаен

КОД: 527

€ 2,200 / € 11.22 на м2 /

Варна Идеален център

Площ:
196 м2

Тип:
4-стаен

Етаж:
3 от 5

Отдава под наем

3-стаен

КОД: 526

€ 650 / € 9.29 на м2 /

Варна Гръцка махала

Площ:
70 м2

Тип:
3-стаен

Отдава под наем

2-стаен

КОД: 523

€ 665 / € 8.52 на м2 /

Варна Гръцка махала

Площ:
78 м2

Тип:
2-стаен

Отдава под наем

Склад

КОД: 522

€ 828 / € 6.14 на м2 /

Варна Западна пром. зона

Площ:
135 м2

Тип:
Склад

Продава
КОД: 521

€ 435,000 / € 1,204.99 на м2 /

Варна, област с.Казашко

Площ:
361 м2

Отдава под наем

2-стаен

КОД: 512

€ 500 / € 6.17 на м2 /

Варна Окръжна болница

Площ:
81 м2

Тип:
2-стаен

Отдава под наем

3-стаен

КОД: 511

€ 650 / € 9.29 на м2 /

Варна Възраждане

Площ:
70 м2

Тип:
3-стаен

Отдава под наем

1-стаен

КОД: 509

€ 409 / € 13.63 на м2 /

Варна Център

Площ:
30 м2

Тип:
1-стаен

Отдава под наем

2-стаен

КОД: 508

€ 601 / € 9.24 на м2 /

Варна Левски

Площ:
65 м2

Тип:
2-стаен

Етаж:
2 от 6

Отдава под наем

3-стаен

КОД: 500

€ 550 / € 9.17 на м2 /

Варна Окръжна болница

Площ:
60 м2

Тип:
3-стаен

Отдава под наем

3-стаен

КОД: 499

€ 562 / € 8.65 на м2 /

Варна Център

Площ:
65 м2

Тип:
3-стаен

Научи за новите имоти преди да бъдат публикувани!

* Натискайки бутона “Абонирай ме” Вие се съгласявате с нашите Общи условия и Политиката за защита на личните данни, като ще получавате имейлки от Нов Дом на посочения имейл адрес