+359 896 162 777 office@novvek.bg

гр. Варна, ул. София 3 Работно време: 9:00 - 18:00

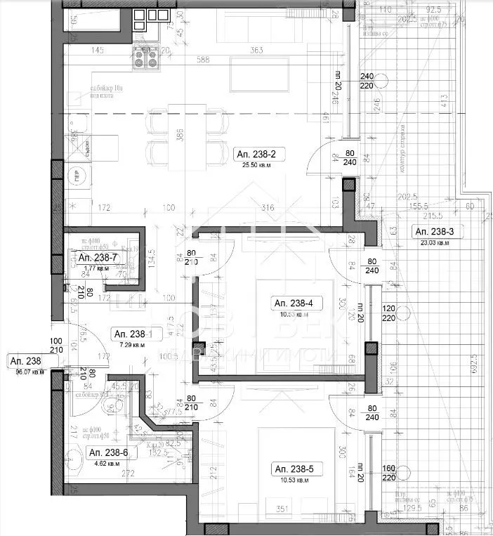
Продава 3-стаен КОД: 162

162

€ 179,730 / € 1,549.40 на м2 /

3-стаен Тип

Етаж 7 от 7 етажа

0 Спални

0 м2 Чиста площ

116 м2 Обща площ

€ 1,549.40 Цена м2

€ 179,730 Цена

  • Код: 162
  • Статус: Свободен
  • Изложение: Изток
  • Град: Варна
  • Строителство: Тухла
  • Година на строителство: 0001
  • Площ: 116 м2

Тристаен апартамент в нов жилищен комплекс във Варна: Възможности за модерно и удобно живеене !!!

Компания за недвижими имоти Нов Век има удоволствието да представи на вашето внимание тристаен апартамент в нов жилищен комплекс във Варна в ж.к. „Възраждане“ I . Този амбициозен проект е резултат от внимателно планиране и стремеж към създаване на комфортна и функционална среда за живеене.

Основни характеристики на комплекса:

Обща площ:

Общата разгъната застроена площ (РЗП) на комплекса е 46 697.60 кв.м., включваща подземни и надземни части.

Разпределение на блоковете:

  • Комплексът е разделен на два основни блока:
  • Първи блок на Запад и Север, включващ секции А, Б, В и Г.
  • Втори блок на Юг и Изток, включващ секции Ж, Е и Д.

Архитектурен дизайн:

  • Разчупен архитектурен образ с множество балкони и обособени дворчета-тераси на приземните нива.
  • Максимално използване на естествените дадености на имота за оптимално осветление и комфорт.

Функционалност и удобства:

  • Подземни гаражи и паркоместа, надземни паркоместа, търговски център и 7 жилищни секции (А, Б, В, Г, Д, Е, Ж).
  • Общо 10 входа, осигуряващи лесен достъп до различните части на комплекса.

Паркинг и инфраструктура:

  • 317 апартамента, 3 ателиета, 355 паркоместа за автомобили (подземни и открити) и 300 паркоместа за велосипеди.
  • Специално внимание е отделено на нуждите на хората с увреждания, като са осигурени гаражни клетки и паркоместа за тях.

Поетапно строителство:

Комплексът ще бъде построен на четири етапа, като всеки етап ще бъде въведен в експлоатация поотделно:

Първи етап:

  • РЗП: 11 711.96 кв.м. (подземно и надземно).
  • Включва изграждане на секции В и Г с входове 3, 4, 5, 6.
  • Общо 102 апартамента, 3 ателиета и 7 други обекта.
  • 58 двустайни апартамента, 42 тристайни и едно ателие.
  • 105 паркоместа и 165 паркоместа за велосипеди.

Втори етап:

  • Планирано изграждане на секция Д, с лице към бул. „Република“ и Кауфланд.

Трети етап:

  • Обхваща западната част на проекта.

Четвърти етап:

  • Най-южната част на имота, към бул. „Цар Освободител“.

Целева аудитория:

Проектът е насочен основно към млади семейства с деца и хора, които търсят спокойна и комфортна среда с лесен достъп до всички точки на града. Апартаментите са проектирани с оглед на вътрешно и външно разположение, за да се възползват максимално от естествените дадености на имота.

Нашият нов жилищен комплекс във Варна предлага уникална комбинация от модерни удобства и уютна атмосфера, която ще удовлетвори нуждите на съвременния начин на живот. Ако желаете да научите повече или да резервирате своя нов дом, не се колебайте да се свържете с нас.

Моля цитирайте код : 162

162
Продава

162

3-стаен КОД: 162

€ 179,730 / € 1,549.40 на м2 /

Варна

Площ:
116 м2

Тип:
3-стаен

Етаж:
7

* Натискайки бутона “Изпращане” Вие се съгласявате с нашите Общи условия и Политиката за защита на личните данни.

Още имоти

Отдава под наем

4-стаен

КОД: 527

€ 2,200 / € 11.22 на м2 /

Варна Идеален център

Площ:
196 м2

Тип:
4-стаен

Етаж:
3 от 5

Отдава под наем

3-стаен

КОД: 526

€ 650 / € 9.29 на м2 /

Варна Гръцка махала

Площ:
70 м2

Тип:
3-стаен

Отдава под наем

2-стаен

КОД: 523

€ 665 / € 8.52 на м2 /

Варна Гръцка махала

Площ:
78 м2

Тип:
2-стаен

Отдава под наем

Склад

КОД: 522

€ 828 / € 6.14 на м2 /

Варна Западна пром. зона

Площ:
135 м2

Тип:
Склад

Продава
КОД: 521

€ 435,000 / € 1,204.99 на м2 /

Варна, област с.Казашко

Площ:
361 м2

Отдава под наем

2-стаен

КОД: 512

€ 500 / € 6.17 на м2 /

Варна Окръжна болница

Площ:
81 м2

Тип:
2-стаен

Отдава под наем

3-стаен

КОД: 511

€ 650 / € 9.29 на м2 /

Варна Възраждане

Площ:
70 м2

Тип:
3-стаен

Отдава под наем

1-стаен

КОД: 509

€ 409 / € 13.63 на м2 /

Варна Център

Площ:
30 м2

Тип:
1-стаен

Отдава под наем

2-стаен

КОД: 508

€ 601 / € 9.24 на м2 /

Варна Левски

Площ:
65 м2

Тип:
2-стаен

Етаж:
2 от 6

Отдава под наем

3-стаен

КОД: 500

€ 550 / € 9.17 на м2 /

Варна Окръжна болница

Площ:
60 м2

Тип:
3-стаен

Отдава под наем

3-стаен

КОД: 499

€ 562 / € 8.65 на м2 /

Варна Център

Площ:
65 м2

Тип:
3-стаен

Научи за новите имоти преди да бъдат публикувани!

* Натискайки бутона “Абонирай ме” Вие се съгласявате с нашите Общи условия и Политиката за защита на личните данни, като ще получавате имейлки от Нов Дом на посочения имейл адрес