+359 896 162 777 office@novvek.bg

гр. Варна, ул. София 3 Работно време: 9:00 - 18:00

Продава Къща КОД: 179

Нова, просторна къща с двор в м-т Горна Трака, Варна

€ 370,000 / € 1,681.82 на м2 /

Къща Тип

Етаж 0 от 0 етажа

0 Спални

0 м2 Чиста площ

220 м2 Обща площ

€ 1,681.82 Цена м2

€ 370,000 Цена

  • Код: 179
  • Статус: Свободен
  • Град: Варна
  • Район: Траката
  • Строителство: Тухла
  • Година на строителство: 2025
  • Парцел: 220 м2

НОВ ВЕК недвижими имоти представя на вашето внимание просторна и функционално проектирана къща, разположена в предпочитаната местност Горна Трака, гр. Варна.

Имотът съчетава модерна визия, светли и удобни помещения, както и собствен двор – идеалното място за спокоен и уютен семеен живот.

Къщата се предлага в завършен вид по БДС стандарт.

При желание, може да бъде реализиран готов индивидуален интериорен проект, или да бъде направен нов.

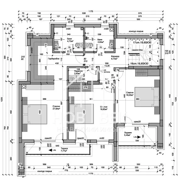
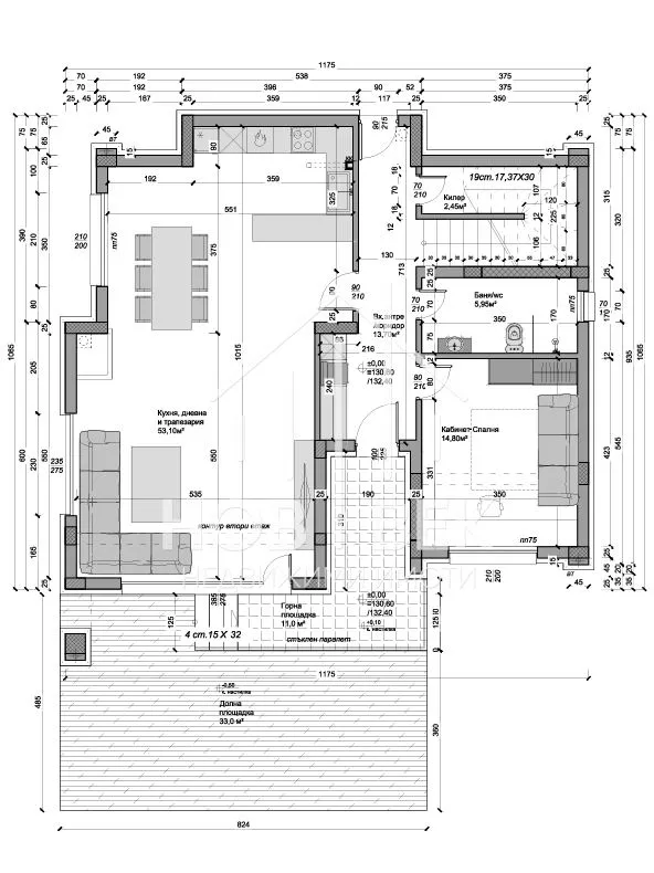
Разпределение:

🔹 Първи етаж:

– Входно антре (13,70 кв.м)

– Просторен дневен тракт с кухненски кът (53,10 кв.м)

– Баня с WC (5,95 кв.м)

– Килер (2,45 кв.м)

– Кабинет / спалня (14,80 кв.м)

🔹 Втори етаж:

– Родителска спалня (27,64 кв.м) с гардеробна, собствена баня с WC (4,72 кв.м) и тераса (7,77 кв.м)

– Втора спалня (16,60 кв.м)

– Трета спалня (16,00 кв.м) с лоджия (5,45 кв.м)

– Баня с WC (4,64 кв.м)

– Перално помещение (2,83 кв.м)

– Коридор (6,73 кв.м)

✅ Тиха и зелена локация

✅ Отличен достъп

✅ Простор и функционалност

✅ Подходяща за целогодишно обитаване

📞 За повече информация и оглед:

Валентин Динев – Нов Век Нови Възможности

+359 882 853 331

Код на оферта: 179

Нова, просторна къща с двор в м-т Горна Трака, Варна
Продава

Нова, просторна къща с двор в м-т Горна Трака, Варна

Къща КОД: 179

€ 370,000 / € 1,681.82 на м2 /

Варна Траката

Площ:
220 м2

Тип:
Къща

Етаж:
0

* Натискайки бутона “Изпращане” Вие се съгласявате с нашите Общи условия и Политиката за защита на личните данни.

Още имоти

Отдава под наем

4-стаен

КОД: 527

€ 2,200 / € 11.22 на м2 /

Варна Идеален център

Площ:
196 м2

Тип:
4-стаен

Етаж:
3 от 5

Отдава под наем

3-стаен

КОД: 526

€ 650 / € 9.29 на м2 /

Варна Гръцка махала

Площ:
70 м2

Тип:
3-стаен

Отдава под наем

2-стаен

КОД: 523

€ 665 / € 8.52 на м2 /

Варна Гръцка махала

Площ:
78 м2

Тип:
2-стаен

Отдава под наем

Склад

КОД: 522

€ 828 / € 6.14 на м2 /

Варна Западна пром. зона

Площ:
135 м2

Тип:
Склад

Продава
КОД: 521

€ 435,000 / € 1,204.99 на м2 /

Варна, област с.Казашко

Площ:
361 м2

Отдава под наем

2-стаен

КОД: 512

€ 500 / € 6.17 на м2 /

Варна Окръжна болница

Площ:
81 м2

Тип:
2-стаен

Отдава под наем

3-стаен

КОД: 511

€ 650 / € 9.29 на м2 /

Варна Възраждане

Площ:
70 м2

Тип:
3-стаен

Отдава под наем

1-стаен

КОД: 509

€ 409 / € 13.63 на м2 /

Варна Център

Площ:
30 м2

Тип:
1-стаен

Отдава под наем

2-стаен

КОД: 508

€ 601 / € 9.24 на м2 /

Варна Левски

Площ:
65 м2

Тип:
2-стаен

Етаж:
2 от 6

Отдава под наем

3-стаен

КОД: 500

€ 550 / € 9.17 на м2 /

Варна Окръжна болница

Площ:
60 м2

Тип:
3-стаен

Отдава под наем

3-стаен

КОД: 499

€ 562 / € 8.65 на м2 /

Варна Център

Площ:
65 м2

Тип:
3-стаен

Научи за новите имоти преди да бъдат публикувани!

* Натискайки бутона “Абонирай ме” Вие се съгласявате с нашите Общи условия и Политиката за защита на личните данни, като ще получавате имейлки от Нов Дом на посочения имейл адрес