+359 896 162 777 office@novvek.bg

гр. Варна, ул. София 3 Работно време: 9:00 - 18:00

Продава Къща КОД: 50

Самостоятелна къща за продажба в м-т Траката

€ 389,000 / € 1,792.63 на м2 /

Къща Тип

Етаж 0 от 0 етажа

0 Спални

0 м2 Чиста площ

217 м2 Обща площ

€ 1,792.63 Цена м2

€ 389,000 Цена

  • Код: 50
  • Статус: Свободен
  • Град: Варна
  • Район: Траката
  • Строителство: Тухла
  • Година на строителство: 2026
  • Парцел: 217 м2

НОВ ВЕК недвижими имоти предлага на Вашето внимание двуетажна къща с РЗП 217 кв.м. и дворно място от 354,58 кв.м. в новостроящ се затворен комплекс.

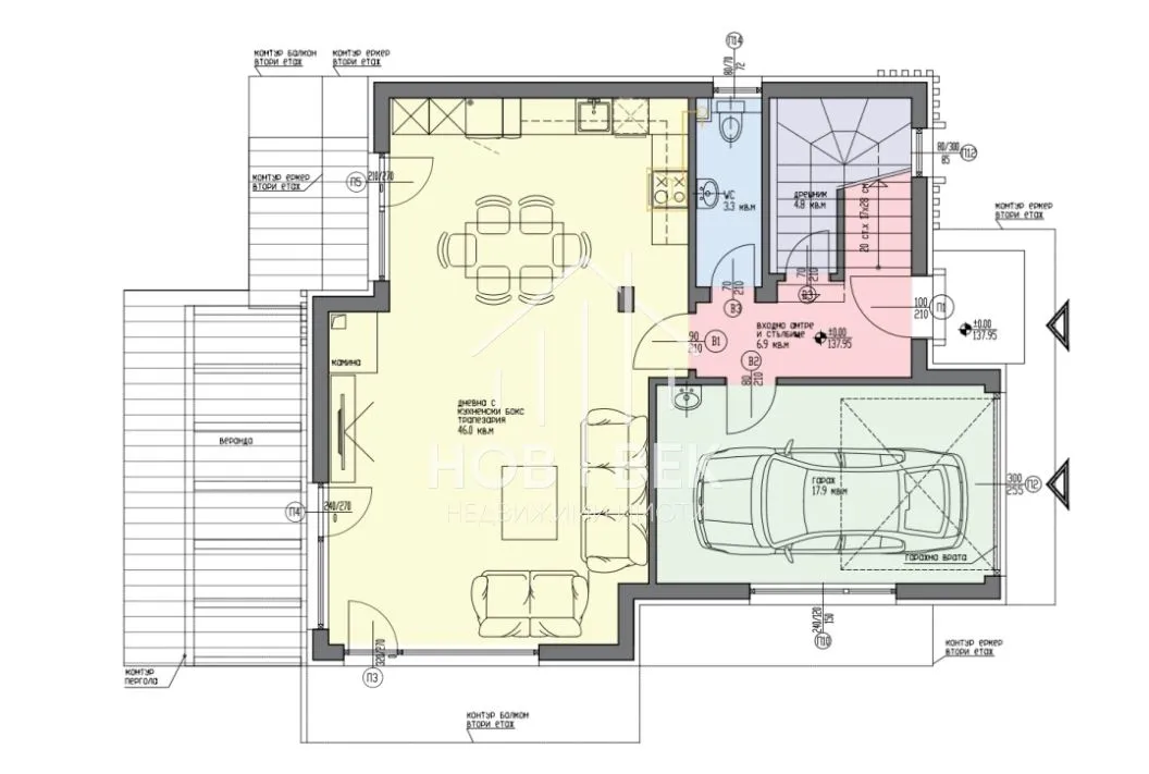
Първи етаж е със ЗП 95,4 кв.м. и се състои от:

-просторен дневен тракт с кухненски кът-46 кв.м.;

-веранда, тоалетна, килер, входно антре и стълбищна клетка;

-гараж-18 кв.м.

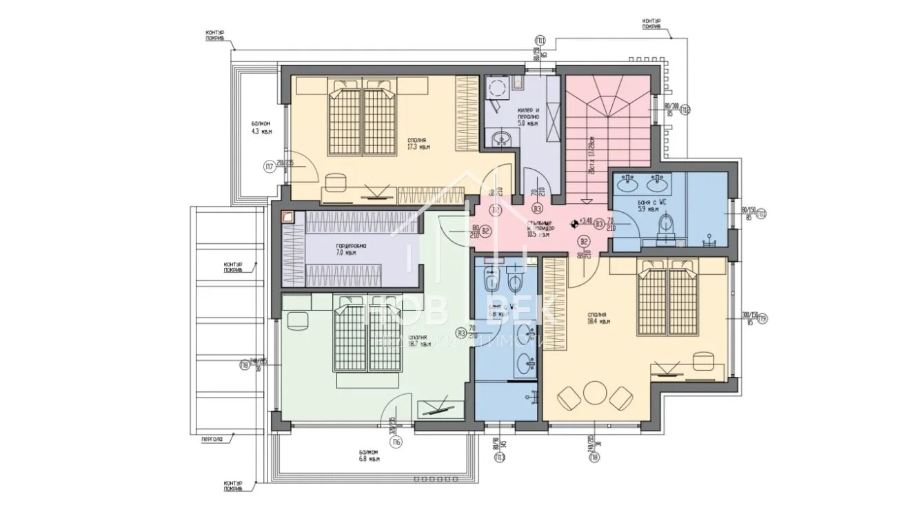
Втори етаж е със ЗП 121,6 кв.м. и се състои от:

-спалня 1 с прилежаща тераса – 18,7 кв.м. с дрешник и прилежаща баня с тоалетна;

-спалня 2 – 18,4 кв.м.;

-спалня 3 с прилежаща тераса – 17,3 кв.м.

-баня с тоалетна, килер/перално помещение, кородор и стълбищна клетка.

Комплексът се състои от 8 двуетажни и 10 триетажни къщи, разполага с отопляем басейн, детска площадка и открит фитнес.

Всяка от къщите ще бъде завършена по БДС,с монтирана алуминиева дограма с термомост на REYNAERS със система за плъзгане с повдигане CXPLS, централно подово отопление, подготовка за изграждане на фотоволтаична система на покрива на всяка къща и ‘smart home’ система.

Допълнителните паркоместа пред всяка от къщите са БОНУС.

Плащането е разсрочено по време на строителството и е индивидуално за всеки клиент.

НОВ ВЕК Недвижими имоти ще бъде до вас през целия процес на сделката! Извършваме всички необходими технически и юридически проверки на имота, който сте избрали. Агенцията може да ви съдейства и за отпускане на банков кредит при преференциални условия!

НОВ ВЕК – Нови възможности

За повече информация не се колебайте да ме потърсите на :

359882853331 Валентин Динев

Самостоятелна къща за продажба в м-т Траката
Продава

Самостоятелна къща за продажба в м-т Траката

Къща КОД: 50

€ 389,000 / € 1,792.63 на м2 /

Варна Траката

Площ:
217 м2

Тип:
Къща

Етаж:
0

* Натискайки бутона “Изпращане” Вие се съгласявате с нашите Общи условия и Политиката за защита на личните данни.

Още имоти

Отдава под наем

4-стаен

КОД: 527

€ 2,200 / € 11.22 на м2 /

Варна Идеален център

Площ:
196 м2

Тип:
4-стаен

Етаж:
3 от 5

Отдава под наем

3-стаен

КОД: 526

€ 650 / € 9.29 на м2 /

Варна Гръцка махала

Площ:
70 м2

Тип:
3-стаен

Отдава под наем

2-стаен

КОД: 523

€ 665 / € 8.52 на м2 /

Варна Гръцка махала

Площ:
78 м2

Тип:
2-стаен

Отдава под наем

Склад

КОД: 522

€ 828 / € 6.14 на м2 /

Варна Западна пром. зона

Площ:
135 м2

Тип:
Склад

Продава
КОД: 521

€ 435,000 / € 1,204.99 на м2 /

Варна, област с.Казашко

Площ:
361 м2

Отдава под наем

2-стаен

КОД: 512

€ 500 / € 6.17 на м2 /

Варна Окръжна болница

Площ:
81 м2

Тип:
2-стаен

Отдава под наем

3-стаен

КОД: 511

€ 650 / € 9.29 на м2 /

Варна Възраждане

Площ:
70 м2

Тип:
3-стаен

Отдава под наем

1-стаен

КОД: 509

€ 409 / € 13.63 на м2 /

Варна Център

Площ:
30 м2

Тип:
1-стаен

Отдава под наем

2-стаен

КОД: 508

€ 601 / € 9.24 на м2 /

Варна Левски

Площ:
65 м2

Тип:
2-стаен

Етаж:
2 от 6

Отдава под наем

3-стаен

КОД: 500

€ 550 / € 9.17 на м2 /

Варна Окръжна болница

Площ:
60 м2

Тип:
3-стаен

Отдава под наем

3-стаен

КОД: 499

€ 562 / € 8.65 на м2 /

Варна Център

Площ:
65 м2

Тип:
3-стаен

Научи за новите имоти преди да бъдат публикувани!

* Натискайки бутона “Абонирай ме” Вие се съгласявате с нашите Общи условия и Политиката за защита на личните данни, като ще получавате имейлки от Нов Дом на посочения имейл адрес